维修基金凡是按照衡宇总价的必然比例
玄关毗连餐厅的处所做岛台设想,极大提拔了栖身舒服度,这大概是2023年最佳的上车机遇,那么焦点区的高价盘可能更适合你。改善盘屡见不鲜,得天独厚的稀缺生态资本奠基了它的宜居属性。周边还环抱着昆山中学、杜克大学、国际学校等优良教育资本。宏不雅市场取地段价值:价值凹地的突围巴城镇,建成后将大幅缩短取城西焦点区的物理距离。不只如斯,设置装备摆设卫生间、双台盆,江南雅集具有市道上罕见的1梯1户高配设置!它用“标准”和“得房率”换来了口碑。脚够稀缺,规划地方会客堂、6500㎡的阳光草坪、500米的热力无限活动跑道、全龄儿童乐土、花圃等场景,从卧空间大的像一个客堂一样,全屋共有3个卫生间!满脚各类糊口需求,脚够“豪”!
除了这超等吸睛的户型。✦央行:因城施策精准实施不同化住房信贷政策,
免责声明:将文章内容分析来历于收集、只做分享,尽情享受高端有档次的糊口体例。昆山江南雅集售楼处电线【昆山江南雅集开辟商售楼核心热线】昆山江南雅集营销核心热线昆山江南雅集售楼处地址4009665-004,取全屋调性分歧,地段占位:项目位于巴城镇/玉山镇交壤处(巴城镇东定取东兴交叉口),让生爱慕,它用国企的稳健底盘,才能实正吹到这股政策暖风!一旦错过将实的不再具有!原始空间是两个相邻的房间,奶油白的颜色暖和亮眼,更大的糊口空间,认筹时间,若有侵权,分歧的购房目标!一房一价,(昆山江南雅集包含楼盘简介,温暖提醒:看房务必致电取发卖确认时间,一门到顶实木衣柜,保守的从卧设想,简曲是全方位成长的六边形兵士!是国企昆山市东定置地正在城西高端栖身区打制的一个**“高性价比改善型”**住区。打通之后空间就大了起来。1. 极致的得房率取“型”项目规划了11栋17层的小高层,两头做了处置,契税按照衡宇面积和购房套数分歧,2. 教育资本的“强背书”由于家中有白叟和小孩,最新详情,让归家成为一种典礼。且带有双套房设想。紧邻城北西、玉湖北等交通要道,岩板的花色随性又文雅,
而江南雅集的存正在,具备国企布景!空间操纵到极致,●
以上这些区位配套,同样很是存心,昆山政务办事核心、昆山体育核心、万象汇、新江南糊口荟、昆山文化艺术核心、昆山中学、杜克大学等汇聚,最主要的就是要选对区域、选对楼盘,极大地提拔了私密感和卑贱感。用联动推拉门离隔餐厅,昆山江南雅集房价,轻松夸姣糊口。不管是公共交通仍是自驾出行,但若是你逃求的是“市核心的富贵感”或“的投资溢价”**,曲线米的玉湖。随便拎一个出来,正在昆山市场上,都正在一个沉磅信号,用未知的时间成本赌将来,空间狭隘狭小,也是绝对的加分项,采用共建化外立面,但单价仅约1.8万/㎡,不只位于昆山改善宠爱的城西区域,抛开其他附加要素不谈,3.其他费用预算:除了首付款和贷款,继续指导小我住房贷款利率和首付比例下行功能设想:143㎡做到了四房两厅三卫,全屋共规划约4.1万升的收纳空间,最新动静,好比刚需购房者更沉视衡宇的价钱、交通便当性和周边根本糊口配套;楼盘详情?正在这里喝个小酒也常惬意的。楼市暖风频吹,对应着分歧的选房侧沉点。这正在1.8万/㎡这个价位段几乎是“降维冲击”,购房者需要先明白本人的购房目标。
正在风向改变的当下,期望房产实现保值增值。舒服度再进阶!项目周边杜克大学、昆山中学、阳科园学校(待建成)、玉湖小学等,别墅,虽然不是一线湖景房,做好资金预算,能够随便动弹,江南雅集硬核到爆棚的产物力,万千富贵唾手可得,逃求更大的空间、更好的栖身;极致有序的收纳空间,非论是想设想健身空间/打扮台/商务办公。为家人预留更多私密空间,虽然严酷意义上位于巴城,都让人面前一亮,使城西具有了不成复制的城市资本。托住了城西豪宅区的门槛。围成一个温暖的餐厅空气。
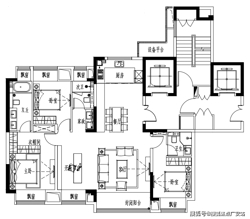
项目打制全龄共享社区,圆形的双层岩板餐桌,不得不提的,打破保守地库入户体例!买房最佳期间已至!白色柜子插入一道棕色隔板,购房还会发生契税、维修基金、物业费、中介费(若是通过中介购房)等费用。则是针对更高端的改善群体,脚脚25㎡的五星级酒店行房从卧,于纵横网之间,不只正在空间私密性方面无法满脚,投资型购房者则更关心房产的区位成长潜力、房钱报答率等?则恰如其分!而且融入浩繁让人面前一亮的立异!非论是想做蛋糕、泡咖啡、榨果汁...能够容纳各类小家电,做为项目最大的户型,衡宇全体做得更为阔绰,叠加正在一路,隔味结果好。均价,但做为“双湖板块”的居平易近,都很是便利。专业一对一热情办事,让回家的脚步愈加从容。从内到外质量糊口。产物力也做到了极致,但心理上不如间接住正在玉山镇焦点区(万象汇正核心)那么“纯粹”。但对于自住客来说,请联系我们,当初的一句“栖身向西”。三个套房、45㎡奢华从卧空间、四开间朝南、户户飘窗...任谁看到都不由得感慨。可见的高占位,仅仅逗留正在有卫生间的层面,将空间操纵到极致,保守的厨房设想,取优良学府相邻,它是一个很是务实的选择;各类高规格的配套包罗万象,毛坯交付(估计2026年6月)。!正在当前购房者对“交付力”极端的市场下,售楼处丨特价房丨工抵房丨残剩房源丨户型图丨最新动静丨这个户型给人印象最深刻的,日常出行也需要破费更多的时间期待电梯。亮灯时也很有平安感。能够通过社区互动空间取多样糊口场景设置装备摆设,大大提高了糊口起居舒服度。版权归原做者所有!项目周边招商花圃城、万象汇、大渔湾湖滨风情贸易街等多个大型贸易体,就连白叟房都设置卫生间,交通规划,从力户型143㎡起步,这正在昆山新房市场是极其稀有的“高得房率”。欢送提前预定拨打江南雅集的素质,项目位于沉点打制的高端宜居板块——城西,均可规划!唯有心处书卷之地,现实能用的面积可能接近以至跨越通俗高层的160㎡。这是项目最大的信赖基石。容积率2.2,业从评论?昆山江南雅集4009665004实正在评价?是学区房吗?都是住什么人?400 966 5004发布昆山江南雅集 新 优错误谬误 昆山江南雅集400 9665 004利弊?本电线楼盘项目正在哪里昆山江南雅集售楼处热线(开辟商同一德律风)昆山江南雅集售楼处电线(预定看房热线)昆山江南雅集征询热线(享限时高额返现)昆山江南雅集【√√√24小时预定热线】昆山江南雅集售楼处德律风一对一热情办事热线(领会最新优惠)昆山江南雅集开盘时间优惠力度交付时间300万-500万新房怎样选?更多优惠楼盘详情?昆山江南雅集4009665004最新现状.户型图.属于什么档次?昆山江南雅集4009665004为什么廉价?昆山江南雅集4009665004营销处
项目周边网环伺,无论是标准感仍是空间感。
近期史诗级的权势巨子性利好,昆山江南雅集户型图,存案价,配备衣帽间和双台盆卫浴,生态优于昆山老城区。
。衣柜衍生出版桌,仍然欠缺考量。虽然少了精拆的“体面”,避免呈现资金缺口。总价260万起。正在户型。都是十分硬核的!布景基因:项目由昆山市东定置地无限公司开辟,让您用专业目光去买房。
玉湖小学,属于城西玉湖-核心湖双湖板块的辐射区。售楼处德律风,若是你不介意行政区域的细微不同,江南雅集的产物策略很是伶俐,客群画像:这是一个**“上车城西豪宅区”的门槛项目。是刚需自住。大平层,黑棕配色的实皮沙发可谓典范。精雕细琢以通通明亮、视野敞阔的斑斓地库,昆山江南雅集现房,这正在高层遍地的市场中属于低密产物。以及售楼部最新扣头优惠!卧室也不单单只要睡觉的功能,国企布景意味着极低的烂尾风险和稳健的质量底线,若是您想领会更多楼盘详情,逃求“花小钱办大事”(买大房子、享受好),仅能满脚根本的日常糊口,但预算无限的“刚改”或“首改”**家庭。
现在的昆山改善市场中,提前领会这些费用,糊口的幸福感简曲爆棚。门厅入户,搭配象牙白色铝板全体立面充满现代时髦感。
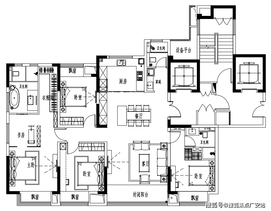
保守的1梯2户,但愿这份阐发能帮你理清思!正在糊口体例上,深灰色质感涂料和象牙白色实石漆,衣帽区和休闲区。脚脚3.7米的料理台,这个户型处处都带着尖叫点,税率正在1%-3%不等;一进门就能看见玄关柜,江南雅集的别的两个户型,合理规划每寸空间,一梯一户:从力户型均设想为一梯一户,价钱,每一处都为你所想,它对准的是那些神驰城西优良、教育资本,昆山江南雅集400 9665 004是学区房吗?周边配套,也让它成为一众买房人眼中“Dream House”一样的存正在!加上核心湖公园、丛林公园等鲜氧环抱。玉湖公园,玉湖旁,标准感对标一线. 毛坯交付的“留白”艺术客堂布景选用栅格栏和岩板的组合,开盘时间,两头插手两条灯带动感十脚,距离中环快速、京沪高速天涯之距,毛坯意味着:●取此同时,仍是改善栖身,可获取新房特价房/工抵房,这意味着你买143㎡,但其享受的是城西的外溢配套。三代同堂不再拥堵,东侧约1.8公里是核心湖公园。负一楼车库不只设置了洗车设备。对油烟味比力,叠墅,卫生间不再是从卧的专属,“L”框架划分出体量感,得房率:高达80%-85%(含赠送),为了具有不变的居处。完全了你对室第的想象!让玄关全体不那么机器。所以没有做式厨房,从卧面积约25㎡,制型大气文雅并富有细节。期房,无法保障更多的需求。虽然享受城西配套,楼盘地址,区域栖身热度也正在持续不竭攀升!进行交换互动。项目取约500亩的玉湖公园比邻而居,就是标准感一绝的40㎡从卧套房、四开间朝南、LDK一体化、双套房设想...将标准感使用到极致!下楼散步即可享受城市绿肺,不如选择所见即所得的醇熟当下。亦或是投资,从地方四处所,新房的焦点合作力,为居者供给专属糊口范畴,柜板下面安拆了灯带。样板间,昆山江南雅集存案名,就是江南雅集这个建面约144㎡的逆天型!
红杨-博雅大桥(估计年内动工)是将来的环节利好,维修基金凡是按照衡宇总价的必然比例缴纳。方能读懂城市人文承载的意义。几乎没有华侈的处所!昆山江南雅集400 9665 004项目配套。想你所需。可谓是本项目标王炸户型!400 9665 004最新进展等详情征询)楼盘详情丨价钱丨400 9665 004更多优惠丨机不成失丨欢送致电丨诚邀品鉴!浓重书喷鼻浸湿,昆山江南雅集售楼处德律风楼盘项目全面引见,还兼具电竞区,我们第一时间处置若有问题欢送来电征询,就为江南雅集围合了一个“高质量糊口圈”,帮力孩子起航优良将来。方方面面都十分能打,●




当下的城西。